商城导航
  • 站长推荐-大咖精选
  • 方案文本
    W-01示范区
    W-02居住区景观
    W-03美丽乡村 农业 小镇
    W-04湿地滨水 山地生态
    W-05校园景观
    W-06道路绿地 公园广场
    W-07酒店 度假 旅游
    W-08屋顶花园 私家庭院
    W-09商业办公
    W-10规划 策划 建筑
    W-11标准化
    W-12其他
  • SU模型
    S-01景观小品
    S-02雕塑小品
    S-03景观建筑小品
    S-04-小场景 节点
    S-05展示区模型
    S-06居住区模型
    S-07儿童活动专题
    S-08滨水 山地 景观
    S-09商业办公 广场公园
    S-10庭院-屋顶花园
    S-11美丽乡村 农业
    S-12其他
  • CAD施工图
    G-001景观小品
    G-002景观建筑小品
    G-003节点小场景
    G-004植物施工图
    G-005展示区
    G-006大区
    G-007滨水景观
    G-008山地景观
    G-009商业办公 广场公园
    G-010庭院 屋顶花园
    G-011美丽乡村 农业
    G-012其他
  • PSD素材
    P-001分层彩平图
    P-002分层彩平素材
    P-003地产景观分层效果图
    P-004滨水景观分层效果图
    P-005山地景观分层效果图
    P-006商业 广场 办公景观
    P-007美丽乡村
    P-008私家花园 屋顶花园
    P-009彩平图贴图材质
    P-010其他
  • LUMION
  • 视频教程
  • 标准化
    B-01方案标准
    B-02施工图标准化
    B-03标准化SU模型
    B-04行业规范类标准化
    标准化
  • 其他
    H-001海绵专项
    H-002意向图文件
    H-003景观营造经验
    H-004管理等规范性文件
  • 八娱驿站
产品详情

大高差景观处理的经典参考-高分子固土防滑格+不锈钢挡土板-阶梯草坡-星空秘境-异性钢构廊架-台地景观-某城市公园全专业全套施工图

 
价格
$15.00
收藏:2
产品详情
编号 G-009-L-333
-大高差景观处理的经典参考-
-高分子固土防滑格+不锈钢挡土板-
-阶梯草坡-星空秘境-
-异性钢构廊架-台地景观-
-某城市公园全专业全套施工图-
全专业全套施工图包括:
1.景观-园建+植物+水电
2.建筑-土建+结构+水电+内装等
3.海绵+其他
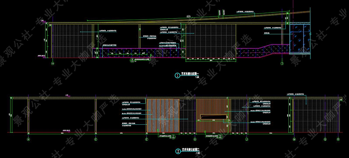
项目施工图内含:高峰无障碍坡道-入口广场-星空秘境廊架-栈道-艺术长廊-见山栈道-台地景观-见山梯步-阶梯草坡-吧台-观景楼梯-等节点施工做法详图,值得借鉴和参考。
      该项目作为超大高差景观处理的经典参考项目值得收藏哦

资料详情截图展示:

0023036080.jpg0054011042.jpg06155204364.jpg06222219096.jpg05737811294.jpg05911844474.jpg00494890958.jpg02029989683.jpg02244781790.jpg00645566014.jpg02865983033.jpg02751202829.jpg01418251471.jpg0263732432.jpg0219415644.jpg02949630666.jpg05485284856.jpg05678888399.jpg05892740192.jpg06718180550.jpg07514000691.jpg07235022105.jpg07121461977.jpg0089034466.jpg00192687660.jpg00381613208.jpg0406887571.jpg0645796208.jpg0453775520.jpg0637117087.jpg0697484559.jpg0668491094.jpg00741868028.jpg00973710437.jpg01042021927.jpg01116160657.jpg01292088804.jpg01342585142.jpg01753681791.jpg01681232497.jpg01849518404.jpg01924058982.jpg02379878072.jpg02433684385.jpg02571086736.jpg03134652485.jpg03237222701.jpg03019494197.jpg03378987111.jpg03487041314.jpg03680091178.jpg03576584496.jpg03814343073.jpg03713626320.jpg04157533173.jpg03980407195.jpg04313206456.jpg04215097421.jpg04673433406.jpg04464831192.jpg04891543888.jpg04789197144.jpg05055055289.jpg05192975175.jpg04915100152.jpg05359667719.jpg05212338852.jpg05583674230.jpg06019022968.jpg06545402388.jpg06849581691.jpg07014563254.jpg07332761885.jpg07430193957.jpg


购买后查看全部内容
登录
登录
其他账号登录:
我的资料
留言
回到顶部