商城导航
  • 站长推荐-大咖精选
  • 方案文本
    W-01示范区
    W-02居住区景观
    W-03美丽乡村 农业 小镇
    W-04湿地滨水 山地生态
    W-05校园景观
    W-06道路绿地 公园广场
    W-07酒店 度假 旅游
    W-08屋顶花园 私家庭院
    W-09商业办公
    W-10规划 策划 建筑
    W-11标准化
    W-12其他
  • SU模型
    S-01景观小品
    S-02雕塑小品
    S-03景观建筑小品
    S-04-小场景 节点
    S-05展示区模型
    S-06居住区模型
    S-07儿童活动专题
    S-08滨水 山地 景观
    S-09商业办公 广场公园
    S-10庭院-屋顶花园
    S-11美丽乡村 农业
    S-12其他
  • CAD施工图
    G-001景观小品
    G-002景观建筑小品
    G-003节点小场景
    G-004植物施工图
    G-005展示区
    G-006大区
    G-007滨水景观
    G-008山地景观
    G-009商业办公 广场公园
    G-010庭院 屋顶花园
    G-011美丽乡村 农业
    G-012其他
  • PSD素材
    P-001分层彩平图
    P-002分层彩平素材
    P-003地产景观分层效果图
    P-004滨水景观分层效果图
    P-005山地景观分层效果图
    P-006商业 广场 办公景观
    P-007美丽乡村
    P-008私家花园 屋顶花园
    P-009彩平图贴图材质
    P-010其他
  • LUMION
  • 视频教程
  • 标准化
    B-01方案标准
    B-02施工图标准化
    B-03标准化SU模型
    B-04行业规范类标准化
    标准化
  • 其他
    H-001海绵专项
    H-002意向图文件
    H-003景观营造经验
    H-004管理等规范性文件
  • 八娱驿站
产品详情

ID:G-007-L-106长度六公里的大型滨水公园景观施工图-码头施工图-滨水边坡设计施工图-架空观景平台施工图-大型滨水公园施工图

 
价格
$20.00
收藏:1
产品详情
编号 G-007-L-106
-精品-
-六公里超大滨水公园-
-莺花古渡码头-
-美坡公园-望江挑空平台-
-美坡台地-疏林休憩-
-疏林水镜等现代艺术景观-
-某大型滨水公园施工图-
项目分三个标段
全套资料:2.95 G
每个标段资料全套施工图包括:
园建+结构+植物+水电+智慧系统等
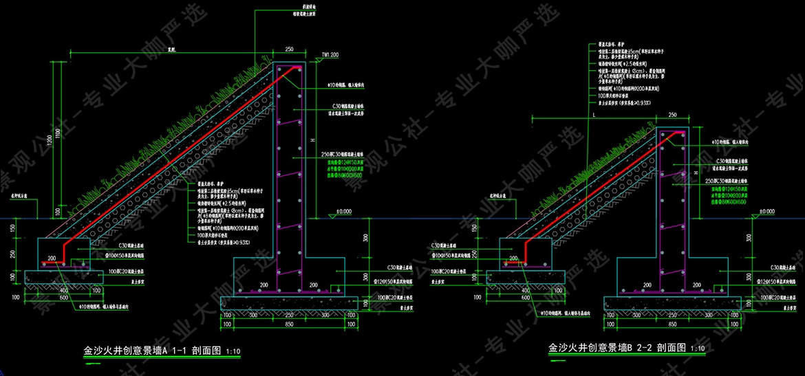
       项目资料施工图中节点超多包含:码头-莺花古渡-空观景平台-斜坡台地景观-桥头景观-斜坡步道-望江平台-水归岸节-林下坐凳休闲空间-疏林休憩-儿童游戏广场-疏林水镜-美坡公园-美坡台地-箱涵文化景墙-等滨水公园常见景观节点,值得借鉴,小编特别推荐。
资料详情截图展示:

00182366578.jpg02364652499.jpg02479663895.jpg02786154583.jpg02270042013.jpg02075870728.jpg01781460652.jpg03051127227.jpg02842566043.jpg04367560427.jpg04945863652.jpg05826429512.jpg08931436014.jpg09385460507.jpg09689134953.jpg10467706516.jpg09454138679.jpg09583602228.jpg01394511643.jpg01255562875.jpg00876151992.jpg02978672008.jpg05235057259.jpg08432756819.jpg06596558362.jpg09066117567.jpg010814947.jpg0064924374.jpg073475596.jpg00481991663.jpg0814199840.jpg00398582989.jpg0722861817.jpg00299780929.jpg0373875153.jpg082203369.jpg00726945255.jpg0802240960.jpg00965553026.jpg1018644109.jpg1051734521.jpg01139051042.jpg01470968938.jpg1077857519.jpg01599213086.jpg01650318982.jpg01895747648.jpg01918696471.jpg02544497989.jpg02191643150.jpg03137280646.jpg03224927020.jpg03314884967.jpg03429285330.jpg03990441472.jpg04023629183.jpg03830946110.jpg03642814725.jpg03531733317.jpg04463924449.jpg04126635933.jpg04257991922.jpg04519356455.jpg04678748588.jpg04712239876.jpg04842309827.jpg05083949256.jpg05111666555.jpg05363123369.jpg05466053921.jpg05550472470.jpg05639298724.jpg05990961773.jpg06043134589.jpg06296784355.jpg06317445942.jpg06731585175.jpg06916392507.jpg07120914085.jpg07434600089.jpg07850737089.jpg07056335953.jpg07726979690.jpg07930879133.jpg08321237783.jpg08560001927.jpg08710517584.jpg08811901395.jpg09117785369.jpg09298474676.jpg09748700984.jpg10288497055.jpg09961918656.jpg09872321548.jpg10315166433.jpg10655595413.jpg10855316130.jpg

购买后查看全部内容
登录
登录
其他账号登录:
我的资料
留言
回到顶部